
長沙市岳麓區(qū)人民法院拍賣公告
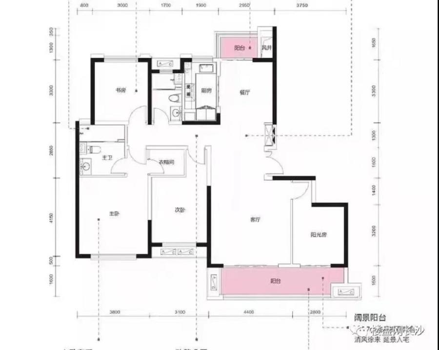
拍賣標的:位于長沙市岳麓區(qū)平川路38號華潤琨瑜府2棟2403號(包含家具),產權證號:20220306485,房屋用途:住宅,建筑面積:163.7平方米,產權產別:私有房產,戶型為四房兩廳兩衛(wèi),房屋所在層數/總層數:24/34。建成時間2020年12月29日,登記時間2022年8月22日。
其他未盡事宜具體情況請各競買人自行查看了解,并承擔相應風險。(注:一切以實物為準)
協(xié)議價:200萬元,起拍價:200萬元,保證金:20萬元,增價幅度:5000元(以及其整倍數)。
特別提醒:拍賣人對拍賣標的物所作的說明和提供的視頻資料、圖片等,僅供競買人參考,不構成對標的物的任何擔保,法院不承擔本標的瑕疵保證。有意者請親自實地看樣,未看樣的競買人視為對本標的實物現狀的確認,責任自負。








所在小區(qū):華潤琨瑜府